239-597-8663
Naples, FL 34116
Fax: 239-597-1699
Gallery
Virtual Showroom
Contact Us
About Us
Products
Precast Stone
Faux Wood
Veneer Stone
Fireplaces
Natural Stone
Cobble Systems
Artistic Pavers
Dexpan
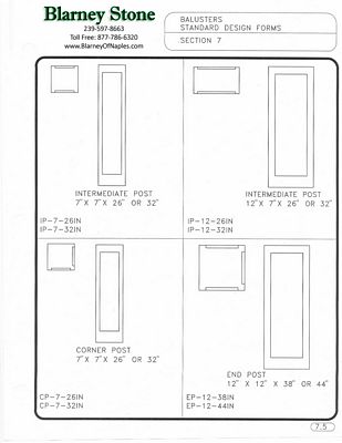
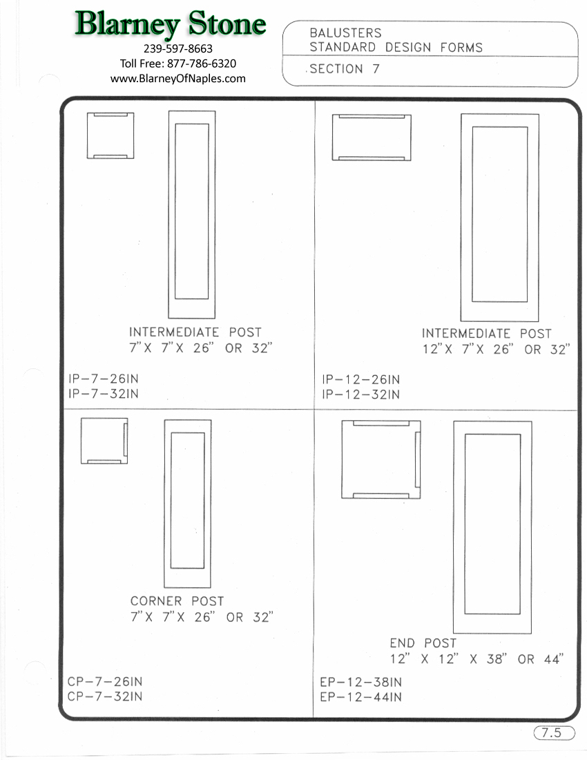
Catalog: Balustrade